Prinses Beatrixlaan 20, RIJSWIJK
verkocht onder voorbehoud
Details
Overdracht
- Vraagprijs
- € 299.500,- k.k.
- Status
- verkocht onder voorbehoud
- Aanvaarding
- in overleg
VvE checklist
- Inschrijving KVK
- Ja
- Jaarlijkse vergadering
- Ja
- Periodieke bijdrage
- Ja (€ 279,00 per maand)
- Reservefonds aanwezig
- Ja
- Onderhoudsplan
- Ja
- Opstalverzekering
- Ja
Bouw
- Soort woning
- appartement
- Soort appartement
- maisonnette
- Aantal woonlagen
- 2
- Woonlaag
- 1
- Bouwvorm
- bestaande bouw
- Bouwjaar
- 1978
- Open portiek
- nee
- Huidige bestemming
- woonruimte
- Onderhoud binnen
- goed tot uitstekend
- Onderhoud buiten
- goed
- Voorzieningen
- mechanische ventilatie, buitenzonwering, lift, natuurlijke ventilatie
- Isolatie
- gedeeltelijk dubbel glas
Energie
- Energielabel
- C
- Verwarming
- blokverwarming
- Warm water
- centrale voorziening
Oppervlakten en inhoud
- Woonoppervlakte
- 90 m²
- Bergruimte oppervlakte
- 6 m²
- Buitenruimte oppervlakte
- 7 m²
Indeling
- Aantal kamers
- 3
- Aantal slaapkamers
- 2
Buitenruimte
- Ligging
- in woonwijk
- Tuin
- zonneterras met een oppervlakte van 7 m² en is gelegen op het zuidwesten
Bergruimte
- Garage
- parkeerplaats
- Parkeergelegenheid
- openbaar parkeren, betaald parkeren, parkeervergunningen, op eigen terrein, op afgesloten terrein
- Schuur/berging
- box
Omschrijving
NETTE EN INSTAPKLARE 3-KAMER MAISONNETTE MET EIGEN PARKEERPLAATS, 2 SLAAPKAMERS, ENERGIELABEL C, EIGEN FIETSENBERGING EN GELEGEN OP EIGEN GROND.
Gelegen op loopafstand van winkelcentrum In de Boogaard, ligt deze 3-kamermaisonnette. De woning is gelegen in een royaal appartementencomplex met een eigen berging op de begane grond.
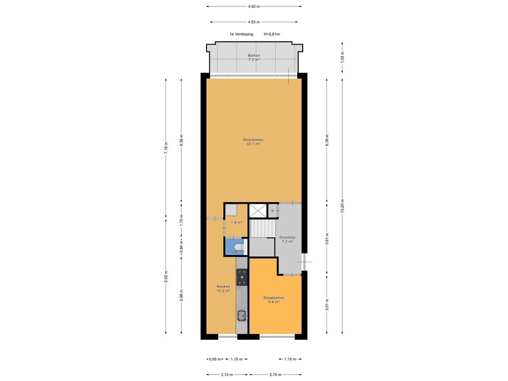
Indeling:
Toegang via het gesloten portiek met bellentableau, brievenbussen en intercom. Via de trap of lift bereik je de eerste etage.
Entree van de woning, ruime ha... Lees meer
NETTE EN INSTAPKLARE 3-KAMER MAISONNETTE MET EIGEN PARKEERPLAATS, 2 SLAAPKAMERS, ENERGIELABEL C, EIGEN FIETSENBERGING EN GELEGEN OP EIGEN GROND.
Gelegen op loopafstand van winkelcentrum In de Boogaard, ligt deze 3-kamermaisonnette. De woning is gelegen in een royaal appartementencomplex met een eigen berging op de begane grond.
Indeling:
Toegang via het gesloten portiek met bellentableau, brievenbussen en intercom. Via de trap of lift bereik je de eerste etage.
Entree van de woning, ruime hal met een vaste kast en toegang tot de woonkamer en de eerste slaapkamer.
De royale wooneetkamer (ca. 6.38 x 4.92m) biedt toegang tot het terras en beschikt over veel natuurlijk lichtinval. Het terras (ca. 4.53 x 1.58m) is gelegen op het zonnige Zuidwesten.
Via de woonkamer bereik je de keuken, de moderne keuken van 2017 (ca. 3.98 x 2.12m) is voorzien van onder- en bovenkasten, 5-pits gaskookplaat, combi-oven, afzuigkap, koelkast, vriezer en vaatwasser.
Naast de keuken bevindt zich de wasruimte en toegang tot het toilet.
De eerste slaapkamer is voorzien van een vaste kast (ca 3.98/3.01 x 2.70m) en heeft veel natuurlijk lichtinval.
Via de binnentrap in de hal loop je een etage naar beneden, hier vindt je de tweede slaapkamer, de badkamer en de meterkast. Daarnaast is er op deze verdieping een achteruitgang naar de bergingen en de parkeerplaats
Grote tweede slaapkamer (ca. 4.90 x 2.68m).
De luxe badkamer (ca. 3.51 x 1.16m) is voorzien van een inloopdouche, wastafelmeubel en mechanische ventilatie.
Extern:
- Eigen overdekte parkeerplaats #65 op afgesloten terrein met toegang via afstandsbediening.
- Eigen fietsenberging op de begane grond (ca. 2.73 x 2.16m) met elektra.
Eigenschappen:
- eigen grond
- elektra 7 groepen + 2 x a.l.s.
- grotendeels dubbel glas
- C.V. middels blokverwarming
- energielabel C
- oplevering ca. januari 2026
Vereniging van eigenaren:
- zeer actieve V.v.E., bijdrage € 279,66 per maand incl. waterverbruik
- Incl. collectieve opstal-, glas-, ongevallen-, W.A-verzekering
- voorschot stookkosten € 118,06 per maand
- bijdrage parkeerplaats € 17,78 per maand
- V.v.E.-onderhoudsreserve € 170.312,47
- Onderhoudsplan aanwezig
- Professioneel bestuur
- volgens opgave:
* keuken nieuw geplaatst 2017
* toilet nieuw geplaatst 2017
* badkamer nieuw geplaatst 2017
* schilderwerk kozijnen voor + achter + balkonhek 2024
De biedingen verlopen via het platform van Eerlijk Bieden te vinden op hooghlanden.nl.



