Oosterhesselenstraat 590, 'S-GRAVENHAGE
verkocht onder voorbehoud
Details
Overdracht
- Vraagprijs
- € 549.500,- k.k.
- Status
- verkocht onder voorbehoud
- Aanvaarding
- in overleg
Bouw
- Soort woning
- woonhuis
- Soort woonhuis
- eengezinswoning
- Type woonhuis
- hoekwoning
- Aantal woonlagen
- 3
- Bouwvorm
- bestaande bouw
- Bouwjaar
- 2008
- Huidige bestemming
- woonruimte
- Onderhoud binnen
- goed
- Onderhoud buiten
- goed
- Voorzieningen
- mechanische ventilatie
- Isolatie
- dakisolatie, muurisolatie, vloerisolatie, dubbel glas, kierdichting
Energie
- Energielabel
- A
- Verwarming
- cv ketel
- Warm water
- cv ketel
- C.V.-ketel
- combi-ketel van Remeha Calenta HR, eigendom
Oppervlakten en inhoud
- Woonoppervlakte
- 158 m²
- Perceeloppervlakte
- 121 m²
- Inhoud
- 560 m³
- Buitenruimte oppervlakte
- 26 m²
Indeling
- Aantal kamers
- 5
- Aantal slaapkamers
- 4
Buitenruimte
- Ligging
- aan rustige weg, in woonwijk
- Tuin
- zonneterras met een oppervlakte van 16 m² en is gelegen op het zuidoosten
Bergruimte
- Garage
- parkeerplaats
- Parkeergelegenheid
- openbaar parkeren, betaald parkeren, parkeervergunningen, op afgesloten terrein
Omschrijving
GROTE (158 M2) 3-LAAGS HOEKEENGEZINSWONING MET 4 GROTE SLAAPKAMERS, ENERGIELABEL A, 2 TERRASSEN, EIGEN PARKEERPLAATS EN EEUWIGDUREND AFGEKOCHTE ERFPACHT.
Gelegen op fietsafstand van het strand en het Zuiderpark ligt deze nette eengezinswoning met 4 slaapkamers. Daarnaast ligt de woning op loopafstand van winkelcentrum Leyweg waar je alle winkels kunt vinden die je nodig hebt. Tevens is er een goede verbinding met het openbaar vervoer en ben je binnen enkele minuten op de uitvalswegen.
Indeling... Lees meer
GROTE (158 M2) 3-LAAGS HOEKEENGEZINSWONING MET 4 GROTE SLAAPKAMERS, ENERGIELABEL A, 2 TERRASSEN, EIGEN PARKEERPLAATS EN EEUWIGDUREND AFGEKOCHTE ERFPACHT.
Gelegen op fietsafstand van het strand en het Zuiderpark ligt deze nette eengezinswoning met 4 slaapkamers. Daarnaast ligt de woning op loopafstand van winkelcentrum Leyweg waar je alle winkels kunt vinden die je nodig hebt. Tevens is er een goede verbinding met het openbaar vervoer en ben je binnen enkele minuten op de uitvalswegen.
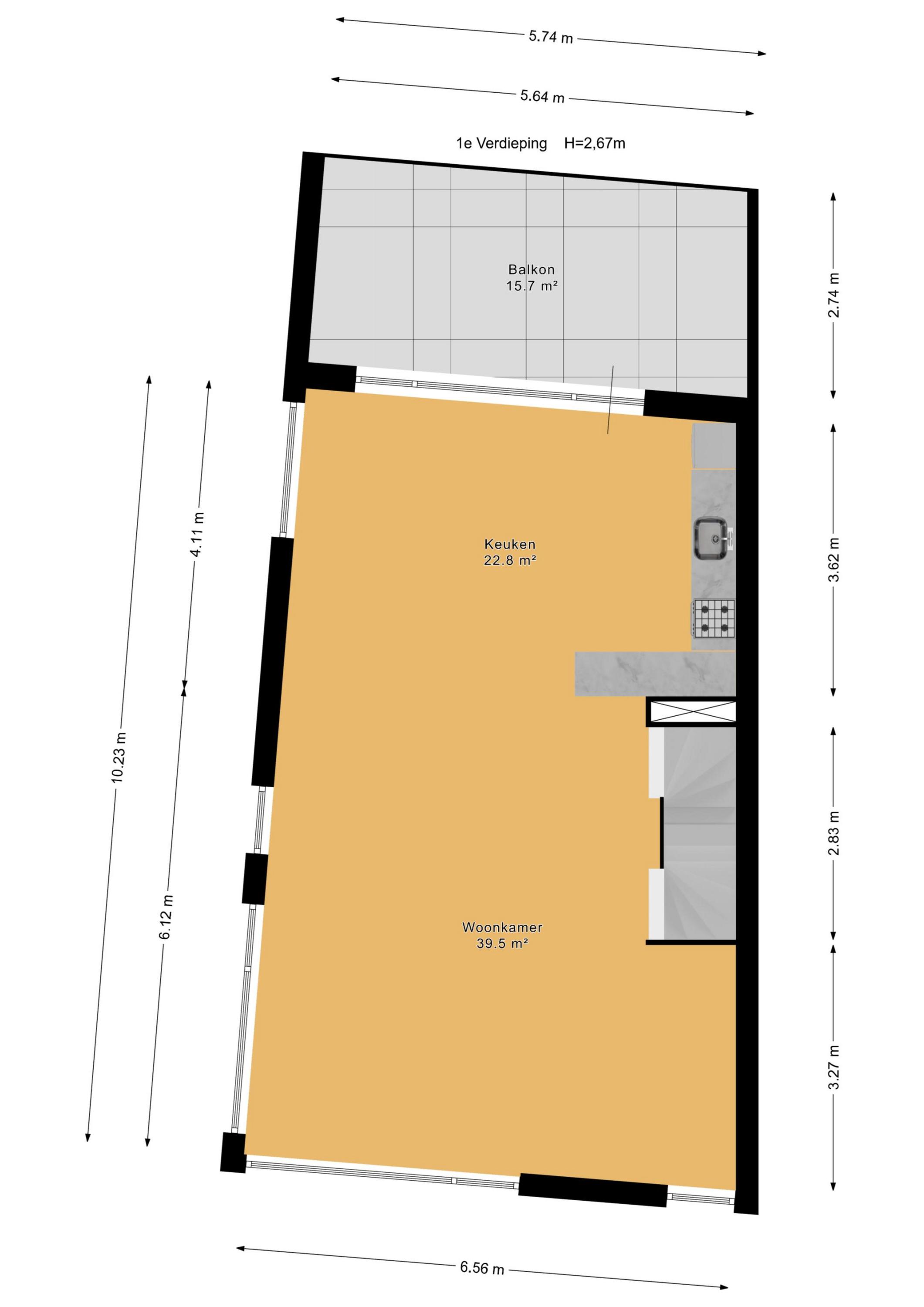
Indeling:
Entree, ruime hal met meterkast, separaat toilet en ruime inpandige berging.
Grote slaapkamer (4.13 x 2.22m) aan de voorzijde.
2e grote slaapkamer (4.93 x 2.43m) aan de achterzijde.
Trap naar 1e etage.
Grote wooneetkamer (ca. 10.23 x 6.56/5.64m) met deur naar het terras.
Ruime open keuken in hoekopstelling met 5-pits gaskookplaat, afzuigkap, oven, magnetron, koelkast, vriezer en vaatwasser.
Royaal en zeer zonnig terras (ca. 5.74 x 2.74m).
Trap naar 2e etage alwaar overloop met 2e toilet en toegang tot het 2e terras.
Ruime badkamer (ca. 3.27 x 2.36m) voorzien van ligbad, inloopdouche en dubbele wastafel.
3e grote slaapkamer (ca. 4.14 x 3.86m) aan de voorzijde.
4e grote slaapkamer (ca. 3.85 x 3.50m) aan de achterzijde.
Royaal en zeer zonnig 2e terras (ca. 5.77 x 1.82m).
Ruime voor- en zijtuin.
Eigen parkeerplaats direct achter de woning op afgesloten parkeerterrein met afstandsbediening.
Eigenschappen:
- oppervlakte ca. 158 m2
- eeuwigdurend afgekochte erfpacht
- elektra 7 gr. + x a.l.s.
- rondom dubbel glas
- C.V.-combiketel Remeha Calenta HR
- energielabel A
- bouwjaar 2008
- oplevering kan snel
Vereniging van Eigenaren voor de parkeerplaats:
- actieve V.v.E
- bijdrage € 24,79/m
- professioneel beheer
De biedingen verlopen via het platform van Eerlijk Bieden te vinden op hooghlanden.nl




