Jaarsveldstraat 84, 'S-GRAVENHAGE
verkocht onder voorbehoud
Details
Overdracht
- Vraagprijs
- € 285.000,- k.k.
- Status
- verkocht onder voorbehoud
- Aanvaarding
- in overleg
VvE checklist
- Inschrijving KVK
- Ja
- Jaarlijkse vergadering
- Ja
- Periodieke bijdrage
- Ja (€ 139,00 per maand)
- Reservefonds aanwezig
- Ja
- Onderhoudsplan
- Ja
- Opstalverzekering
- Ja
Bouw
- Soort woning
- appartement
- Soort appartement
- portiekwoning
- Aantal woonlagen
- 1
- Woonlaag
- 3
- Bouwvorm
- bestaande bouw
- Bouwjaar
- 1951
- Open portiek
- nee
- Huidige bestemming
- woonruimte
- Onderhoud binnen
- goed
- Onderhoud buiten
- goed
- Isolatie
- dubbel glas
Energie
- Energielabel
- E
- Verwarming
- cv ketel
- Warm water
- cv ketel
- C.V.-ketel
- gas gestookte combi-ketel uit 2020 van Remeha Avanta HR, eigendom
Oppervlakten en inhoud
- Woonoppervlakte
- 64 m²
- Inpandige ruimte oppervlakte
- 1 m²
- Bergruimte oppervlakte
- 7 m²
- Buitenruimte oppervlakte
- 6 m²
Indeling
- Aantal kamers
- 3
- Aantal slaapkamers
- 2
Buitenruimte
- Ligging
- aan rustige weg, in woonwijk
Bergruimte
- Garage
- geen garage
- Parkeergelegenheid
- openbaar parkeren, betaald parkeren, parkeervergunningen
Omschrijving
IN RUSTIGE BUURT GELEGEN MOOIE 3-KAMER TOPETAGEWONING MET 2 SLAAPKAMERS, BALKON, EIGEN FIETSENBERGING EN GELEGEN OP EIGEN GROND.
Het appartement is gunstig gelegen op loopafstand van openbaar vervoer, winkelcentrum Leyenburg met twee grote supermarkten, het Zuiderpark en op fietsafstand van het strand en Den Haag Centrum.
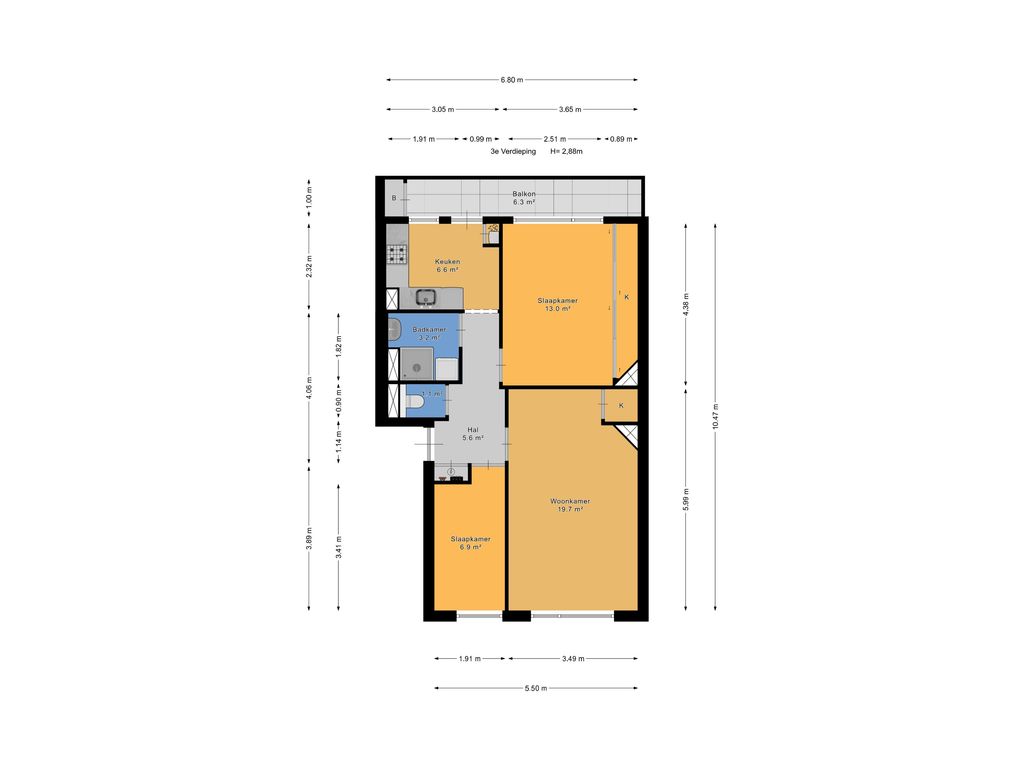
Indeling:
Toegang via gesloten portiek met bellentableau, brievenbussen en intercom.
Trap naar 2e verdieping. Entree woning met ruime hal met meterkast, separaat toilet en t... Lees meer
IN RUSTIGE BUURT GELEGEN MOOIE 3-KAMER TOPETAGEWONING MET 2 SLAAPKAMERS, BALKON, EIGEN FIETSENBERGING EN GELEGEN OP EIGEN GROND.
Het appartement is gunstig gelegen op loopafstand van openbaar vervoer, winkelcentrum Leyenburg met twee grote supermarkten, het Zuiderpark en op fietsafstand van het strand en Den Haag Centrum.
Indeling:
Toegang via gesloten portiek met bellentableau, brievenbussen en intercom.
Trap naar 2e verdieping. Entree woning met ruime hal met meterkast, separaat toilet en toegang tot alle vertrekken.
Ruime wooneetkamer (ca. 5.99 x 3.49m).
Moderne keuken (ca. 3.05 x 2.32m) met onder- en bovenkasten, 4-pits gaskookplaat, afzuigkap, combimagnetron, vaatwasser en deur naar het balkon.
Nette badkamer (ca. 1.91 x 1.82m), met douche, wastafel en wasmachine-aansluiting.
Grote achterslaapkamer (ca. 4.38 x 2.51m) met kastenwand.
2e slaapkamer (ca. 3.41 x 1.91m) aan de voorzijde.
Ruim en zonnig balkon over de gehele breedte van de woning met balkonkast.
Eigen fietsenberging (ca. 3.64 x 1.96m) in de onderbouw.
Eigenschappen:
- gelegen op eigen grond
- elektra 3 gr. + a.l.s.
- kunststof kozijnen met dubbel glas
- C.V.-combiketel Remeha Avanta HR '20, laatste onderhoud okt. '24
- oplevering ca. maart '26
Vereniging van Eigenaren:
- actieve V.v.E € 139,32,--/m
- incl. collectieve opstal-, glas- en W.A.-verzekering
- V.v.E-onderhoudsreserve € 274.622,92
- 47/2.610 aandeel
- onderhoudsplan aanwezig
- professioneel bestuur
Volgens opgave:
* Keuken nieuw geplaatst augustus '25
Biedingen verlopen via het platform van Eerlijk Bieden te vinden op hooghlanden.nl

