Jaarsveldstraat 226, 'S-GRAVENHAGE
verkocht onder voorbehoud
Details
Overdracht
- Vraagprijs
- € 499.500,- k.k.
- Status
- verkocht onder voorbehoud
- Aanvaarding
- in overleg
Bouw
- Soort woning
- woonhuis
- Soort woonhuis
- eengezinswoning
- Type woonhuis
- tussenwoning
- Aantal woonlagen
- 4
- Bouwvorm
- bestaande bouw
- Bouwjaar
- 1939
- Huidige bestemming
- woonruimte
- Onderhoud binnen
- goed
- Onderhoud buiten
- goed
- Voorzieningen
- airconditioning, zonnepanelen
- Isolatie
- dakisolatie, vloerisolatie, gedeeltelijk dubbel glas
Energie
- Energielabel
- C
- Verwarming
- cv ketel
- Warm water
- cv ketel
- C.V.-ketel
- gas gestookte combi-ketel uit 2012 van HR, eigendom
Oppervlakten en inhoud
- Woonoppervlakte
- 120 m²
- Perceeloppervlakte
- 105 m²
- Inhoud
- 438 m³
- Inpandige ruimte oppervlakte
- 1 m²
- Bergruimte oppervlakte
- 5 m²
- Buitenruimte oppervlakte
- 4 m²
Indeling
- Aantal kamers
- 5
- Aantal slaapkamers
- 4
Buitenruimte
- Ligging
- aan rustige weg, in woonwijk
- Tuin
- achtertuin met een oppervlakte van 28 m² en is gelegen op het zuidoosten
Bergruimte
- Garage
- geen garage
- Parkeergelegenheid
- openbaar parkeren, betaald parkeren, parkeervergunningen
- Schuur/berging
- vrijstaand steen
Omschrijving
ZEER FRAAIE INWENDIG GERENOVEERDE 5-KAMER 3-LAAGS EENGEZINSWONING MET 4 SLAAPKAMERS, 12 ZONNEPANELEN, AIRCO, ENERGIELABEL C, EIGEN GROND EN VOOR-EN ZEER ZONNIGE ACHTERTUIN.
Deze prachtige eengezinswoning is gunstig gelegen op loopafstand van openbaar vervoer, winkelcentrum Leyenburg met o.a. Jumbo en Albert Heijn, het Zuiderpark en op fietsafstand van het strand en het Centrum.
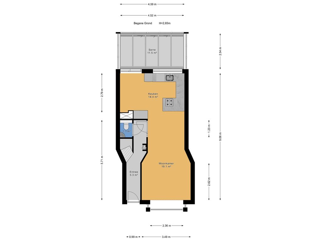
Indeling:
Toegang via voortuin, entree, hal met meterkast en modern toilet.
Grote wooneetkamer (ca. 5.71 x 3.49/2... Lees meer
ZEER FRAAIE INWENDIG GERENOVEERDE 5-KAMER 3-LAAGS EENGEZINSWONING MET 4 SLAAPKAMERS, 12 ZONNEPANELEN, AIRCO, ENERGIELABEL C, EIGEN GROND EN VOOR-EN ZEER ZONNIGE ACHTERTUIN.
Deze prachtige eengezinswoning is gunstig gelegen op loopafstand van openbaar vervoer, winkelcentrum Leyenburg met o.a. Jumbo en Albert Heijn, het Zuiderpark en op fietsafstand van het strand en het Centrum.
Indeling:
Toegang via voortuin, entree, hal met meterkast en modern toilet.
Grote wooneetkamer (ca. 5.71 x 3.49/2.36m) met grote raampartijen.
Ruime open woonkeuken (ca. 4.52 x 2.79m) voorzien van onder- en bovenkasten, 4-pits inductiekookplaat, kookveldafzuiging, oven, koelkast, vriezer, vaatwasser, Quookerkraan heet/gekoeld/bruisend en deur naar de serre.
Ruime serre (ca. 4.52 x 2.54m).
Trap naar 1e etage, alwaar overloop.
Fraaie luxe badkamer (ca. 2.19 x 1.89m) voorzien van ligbad/douche, designradiator, wastafelmeubel en 2e toilet.
Grote voorslaapkamer (ca. 4.62 x 4.05/2.61m) met vaste kast.
2e (achter)slaapkamer (ca. 3.46 x 2.60m) met vaste kast en openslaande deuren naar het balkon.
Trap naar 2e etage, alwaar overloop met was- en stookruimte.
3e ruime slaapkamer (ca. 4.25 x 2.60m) met dakkapel.
4e slaapkamer (ca. 4.61/2.77 x 2.10m) met dakkapel.
Zeer zonnige achtertuin (ca. 5.81 x 4.80m) op het Zuidoosten met stenen berging met elektra.
Kenmerken:
- eigen grond
- energielabel C
- elektra 14 gr. + 3 x a.l.s.
- grotendeels dubbel glas
- C.V.-combiketel Intergas HR '12
- 12 zonnepanelen
- 3 x airco op 1 gezamenlijke mulitisplit
- dakisolatie
- vloerisolatie
- oplevering in overleg
De biedingen verlopen via het platform van Eerlijk Bieden te vinden op hooghlanden.nl.





