Herman Costerstraat 30, 'S-GRAVENHAGE
€ 235.000,- k.k.
Details
Overdracht
- Vraagprijs
- € 235.000,- k.k.
- Status
- beschikbaar
- Aanvaarding
- in overleg
VvE checklist
- Inschrijving KVK
- Ja
- Jaarlijkse vergadering
- Ja
- Periodieke bijdrage
- Ja (€ 204,00 per maand)
- Reservefonds aanwezig
- Ja
- Onderhoudsplan
- Nee
- Opstalverzekering
- Ja
Bouw
- Soort woning
- appartement
- Soort appartement
- galerijflat
- Aantal woonlagen
- 1
- Woonlaag
- 5
- Bouwvorm
- bestaande bouw
- Bouwjaar
- 1973
- Open portiek
- nee
- Huidige bestemming
- woonruimte
- Onderhoud binnen
- redelijk
- Onderhoud buiten
- goed
- Voorzieningen
- lift
- Isolatie
- gedeeltelijk dubbel glas
Energie
- Energielabel
- G
- Verwarming
- blokverwarming
- Warm water
- elektrische boiler eigendom
Oppervlakten en inhoud
- Woonoppervlakte
- 49 m²
- Bergruimte oppervlakte
- 4 m²
- Buitenruimte oppervlakte
- 7 m²
Indeling
- Aantal kamers
- 2
- Aantal slaapkamers
- 1
Buitenruimte
- Ligging
- in centrum, in woonwijk
- Tuin
- zonneterras met een oppervlakte van 7 m² en is gelegen op het zuidoosten
Bergruimte
- Garage
- geen garage
- Parkeergelegenheid
- openbaar parkeren, betaald parkeren, parkeervergunningen, op afgesloten terrein
Omschrijving
MET FRAAI UITZICHT OVER DE SKYLINE VAN DEN HAAG GELEGEN, EENVOUDIG 2-KAMER 5E ETAGE APPARTEMENT MET TERRRAS, LIFT, EIGEN BERGING, PARKEREN OP EIGEN TERREIN EN GELEGEN OP EIGEN GROND.
Welkom aan de Herman Costerstraat 30 – een 2-kamerappartement met prachtig vrij uitzicht over de skyline van Den Haag. Gelegen nabij de Haagse Markt, biedt deze woning een fijne mix van dynamiek en rust. De woning is uitstekend bereikbaar en ligt gunstig ten opzichte van diverse voorzieningen, het centrum van De... Lees meer
MET FRAAI UITZICHT OVER DE SKYLINE VAN DEN HAAG GELEGEN, EENVOUDIG 2-KAMER 5E ETAGE APPARTEMENT MET TERRRAS, LIFT, EIGEN BERGING, PARKEREN OP EIGEN TERREIN EN GELEGEN OP EIGEN GROND.
Welkom aan de Herman Costerstraat 30 – een 2-kamerappartement met prachtig vrij uitzicht over de skyline van Den Haag. Gelegen nabij de Haagse Markt, biedt deze woning een fijne mix van dynamiek en rust. De woning is uitstekend bereikbaar en ligt gunstig ten opzichte van diverse voorzieningen, het centrum van Den Haag ligt op korte fietsafstand, een supermarkt ligt op loopafstand en bereik je een NS-station binnen enkele minuten fietsen. Daarnaast ben je met de auto snel op de uitvalswegen.
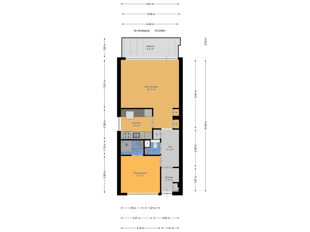
Indeling:
Toegang via centrale entree met brievenbussen, bellentableau, intercom en lift naar 5e etage, alwaar galerij.
Entree, hal, tussenhal, separaat toilet met fonteintje.
Ruime wooneetkamer (ca. 4.43 x 3.81m) met vaste kasten, fraai uitzicht en toegang tot het terras.
Eenvoudige keuken (ca. 2.47 x 2.39m) met 4-pits elektrische kooplaat, afzuigkap, oven, magnetron, koelkast, vriezer en wasmachine.
Eenvoudige badkamer (ca. 1.79 x 1.13m) met douche, en wastafel.
Ruime slaapkamer (ca. 3.10 x 2.93m).
Zeer zonnig en ruim terras (ca. 4.43 x1.53m) over de gehele breedte op het Zuidoosten.
Parkeren op afgesloten parkeerplaats.
Eigen berging (#30) op de 1e etage.
Collectieve fietsenberging op de begane grond.
Eigenschappen:
- eigen grond
- elektra 5 groepen + a.l.s.
- deels voorzien van dubbel glas
- C.V. middels blokverwarming
- elektrische boiler
- niet zelf bewoond door eigenaar
- oplevering kan snel
Vereniging van Eigenaren:
- V.v.E.-bijdrage € 204,81/maand inclusief waterverbruik
- inclusief collectieve opstal- ongevallen-, rechtsbijstand- en W.A.-verzekering
- voorschot stookkosten € 60,--/maand
- V.v.E.-onderhoudsreserve € 348.457,36
- 4/354e aandeel in de V.v.E.
- professioneel bestuur
De biedingen verlopen via het platform van Eerlijk Bieden te vinden op hooghlanden.nl.

