Barneveldstraat 60, 'S-GRAVENHAGE
verkocht onder voorbehoud
Details
Overdracht
- Vraagprijs
- € 249.500,- k.k.
- Status
- verkocht onder voorbehoud
- Aanvaarding
- in overleg
VvE checklist
- Inschrijving KVK
- Ja
- Jaarlijkse vergadering
- Nee
- Periodieke bijdrage
- Ja (€ 76,00 per maand)
- Reservefonds aanwezig
- Ja
- Onderhoudsplan
- Nee
- Opstalverzekering
- Ja
Bouw
- Soort woning
- appartement
- Soort appartement
- portiekwoning
- Aantal woonlagen
- 1
- Woonlaag
- 2
- Bouwvorm
- bestaande bouw
- Bouwjaar
- 1937
- Open portiek
- nee
- Huidige bestemming
- woonruimte
- Onderhoud binnen
- goed
- Onderhoud buiten
- goed
- Isolatie
- dubbel glas
Energie
- Energielabel
- C
- Verwarming
- cv ketel
- Warm water
- cv ketel
- C.V.-ketel
- gas gestookte combi-ketel uit 2023 van Intergas hr, eigendom
Oppervlakten en inhoud
- Woonoppervlakte
- 65 m²
- Inpandige ruimte oppervlakte
- 1 m²
- Buitenruimte oppervlakte
- 6 m²
Indeling
- Aantal kamers
- 3
- Aantal slaapkamers
- 2
Buitenruimte
- Ligging
- aan rustige weg, in woonwijk
Bergruimte
- Garage
- geen garage
- Parkeergelegenheid
- openbaar parkeren, betaald parkeren, parkeervergunningen
Omschrijving
IN RUSTIGE BUURT GELEGEN NETTE 3/4-KAMER 1E ETAGE WONING MET ENERGIELABEL C, 2 SLAAPKAMERS EN GELEGEN OP EIGEN GROND.
Het appartement heeft een gunstige ligging t.o.v. winkels aan de Dierenselaan/Apeldoornselaan, openbaar vervoer en diverse scholen. Groen-, sport- en recreatievoorzieningen alsmede het Zuiderpark liggen op loopafstand.
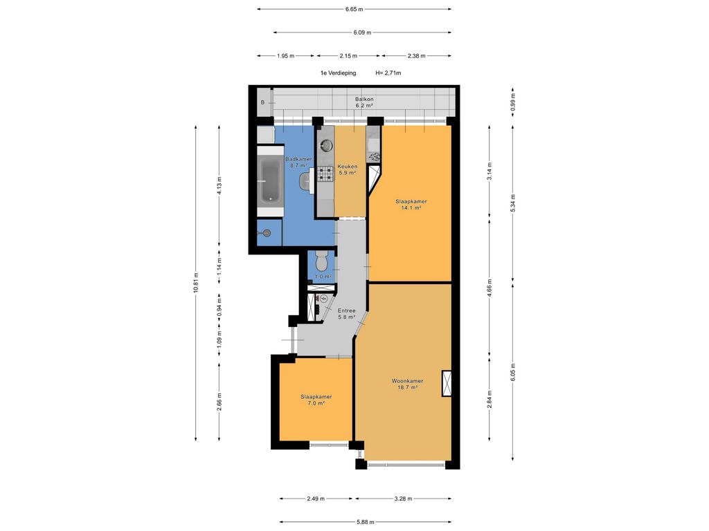
Indeling:
Toegang via open portiek met trap naar 1e etage, entree woning, hal en toegang tot alle vertrekken.
Ruime wooneetkamer (ca. 6.05 x 3.28m).
Nette keu... Lees meer
IN RUSTIGE BUURT GELEGEN NETTE 3/4-KAMER 1E ETAGE WONING MET ENERGIELABEL C, 2 SLAAPKAMERS EN GELEGEN OP EIGEN GROND.
Het appartement heeft een gunstige ligging t.o.v. winkels aan de Dierenselaan/Apeldoornselaan, openbaar vervoer en diverse scholen. Groen-, sport- en recreatievoorzieningen alsmede het Zuiderpark liggen op loopafstand.
Indeling:
Toegang via open portiek met trap naar 1e etage, entree woning, hal en toegang tot alle vertrekken.
Ruime wooneetkamer (ca. 6.05 x 3.28m).
Nette keuken (ca. 3.14 x 2.15m) met onder- en bovenkasten, 4-pits gaskookplaat, afzuigkap, koelkast, vriezer, vaatwasser en deur naar het balkon.
Grote badkamer (ca. 4.13 x 1.95m) met ligbad, separate douche, wastafelmeubel, wasmachine-aansluiting en open slaande deuren naar het balkon.
Grote achterslaapkamer (ca. 5.34 x 2.38m) met open slaande deuren naar het balkon.
2e slaapkamer aan de voorzijde (ca. 2.66 x 2.49m).
Balkon over de gehele breedte van de woning met balkonkast.
Eigenschappen:
- eigen grond
- elektra 4 groepen + a.l.s.
- rondom dubbel glas
- C.V.-combiketel Intergas HR '23
- energielabel C
- niet zelf bewoond door eigenaar
- oplevering kan snel
Vereniging van eigenaren:
- actieve V.v.E. € 76,--/m
- inclusief collectieve opstal-, glas- en W.A.-verzekering
- V.v.E.-saldo € 3.009,80
- 1/3 aandeel
- intern beheer
De biedingen verlopen via het platform van Eerlijk Bieden te vinden op www.hooghlanden.nl
